Производи
ПОЧЕТНА > Производи
35кВ фиксни затворени прстенасти разводни уређај за дистрибуцију
  • 35кВ фиксни затворени прстенасти разводни уређај за дистрибуцију35кВ фиксни затворени прстенасти разводни уређај за дистрибуцију

35кВ фиксни затворени прстенасти разводни уређај за дистрибуцију

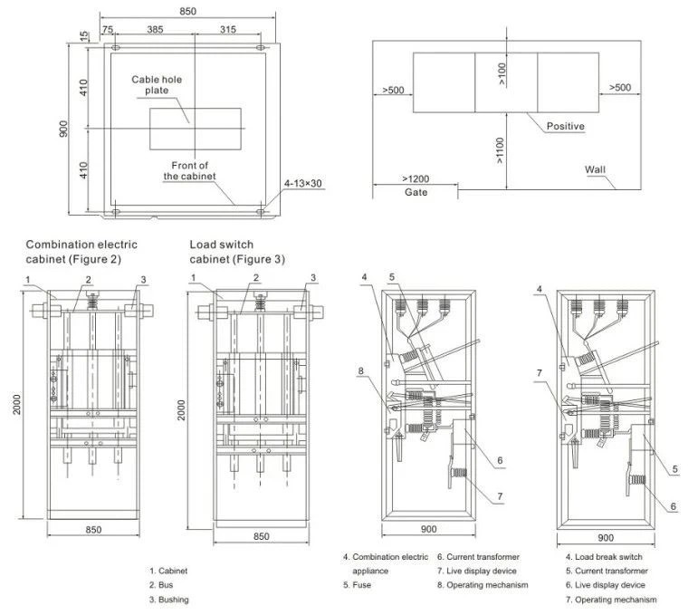
Цомевилл је професионални произвођач у Кини. Наш 35кВ фиксни затворени прстенасти разводни уређај за дистрибуцију (у даљем тексту „главна прстенаста јединица“) за дистрибуцију електричне енергије. Ово је високонапонско расклопно постројење посебно дизајнирано за системе дистрибуције електричне енергије, погодно за потребе набавке и одабира пројеката енергетске инфраструктуре, и идеалан је избор за одлуке о набавци.

Као основна опрема за контролу и заштиту дистрибутивних мрежа, Цомевилл висококвалитетни 35кВ фиксни затворени прстенасти разводни уређај за дистрибуцију произведен у Кини може стабилно да даје поуздану снагу у различитим сценаријима примене, као што су пројекти изградње и реновирања градских енергетских мрежа, индустријских и рударских предузећа, високих зграда и јавних објеката у потпуности испуњавају основне захтеве купаца за перформансе опреме.

Ова прстенаста главна јединица фиксног дизајна постала је преферирани производ за набавку модерног система за дистрибуцију електричне енергије, нудећи вам економичну конфигурацију енергетске инфраструктуре.

Технички подаци

Серијски број Ставка Јединица Подаци
1 Називни напон кВ 12 40.5
2 Називна фреквенција Хз 50/60
3 Називна струја A 630 630/1250
4 Називна фреквенција снаге издржи напон (1 мин) Фазе и на земљу кв 42 95
Изолационе удаљености 48 118
Називна муња импулсе издржи напон Фазе и на земљу 75 185
Изолационе удаљености 85 215
Издржљиви напон фреквенције напајања (контролно и помоћно коло) 2
5 Називна краткотрајна отпорна струја кА 20/25 31.5
6 Називна вршна отпорна струја кА 50/63 80
7 Трајање називне струје кратког споја s 4 4
8 Називна струја прекида кратког споја кА 20/25 31.5
9 Називна струја кратког споја кА 50/63 80
10 Трајање лука s 1 1
11 Називни радни редослед
0-0,3с-ЦО-3мин-ЦО
12 Изолациони гас
СФ6
13 Годишња стопа цурења % ≤ 0,01
14 Стандардни степен заштите Запечаћена кутија за гас
ИП67
Кућиште разводног уређаја ИП4Кс
15 Називни притисак надувавања МПа 0.03
Минимални функционални ниво притиска 0.01
16 Називни напон напајања помоћног кола V ДЦ 24, 48, 110, 220, АЦ220
17 Механички живот Прекидач Операција 10000 11000
Прекидач за изолацију 5000 3000
Прекидач за уземљење 5000 3000
18 Електрична издржљивост прекидача Операција 30(Е2)
19 Губитак континуитета услуге
ЛСЦ2

Параметри техничког радног окружења

· Температура околине: -10°Ц ~ +40°Ц
·Висина: Висок напон ≤1000м; Низак напон ≤2500м (прилагођени дизајн доступан за набавку преко опсега)
· Релативна влажност: ≤85%
·Сеизмички интензитет: ≤ Магнитуда 8
· Предуслови за животну средину: Без опасности од пожара/експлозије, без озбиљног загађења, без хемијске корозије, без насилних вибрација (место набавке мора испуњавати ове)

Кроз неуморне напоре свих наших запослених, ми континуирано унапређујемо наше управљање квалитетом како бисмо осигурали да наша 35кВ фиксна затворена разводна опрема за дистрибуцију остане извор поверења за наше купце. Наш циљ је да купцима пружимо најсвеобухватнији систем тестирања и најпогоднија решења, максимизирајући задовољство купаца. Придржавамо се принципа купца на првом месту, тржишне оријентације и ефикасности и континуирано негујемо свој таленат.

Хот Тагс: главна јединица са металним прстеном, Кина, произвођачи, фабрика, цена, 630А прекидач ваздушног оптерећења, унутрашњи 24кв гас ЛБС, СФ6 прекидач за растављање, вакумски прекидач за спољашњу употребу од порцелана, једнофазни трансформатор напона А 20кВ инкулаторни прекидач, Вакумски прекидач

Хот Тагс: 35кВ фиксни затворени прстенасти разводни уређај за дистрибуцију, Кина, произвођач, добављач, фабрика, велепродаја, прилагођено, на лагеру, произведено у Кини, ниска цена, квалитет
Пошаљи упит
Контакт информације
  • Адреса

    Но.777 Ванвенг Роад, Венгианг Суб-Дистрицт, Иуекинг Цити, Вензхоу Цити, Зхејианг Провинце, Кина

  • Е-маил

    hannah@comewill.com

Пошаљите упит Цомевилл-у за расклопне уређаје, вакуумске прекидаче, струјни трансформатор. Добијте прилагођене понуде, ниске цене или стручну подршку од нашег фабричког тима у Кини.
X
Користимо колачиће да бисмо вам понудили боље искуство прегледања, анализирали саобраћај на сајту и персонализовали садржај. Коришћењем овог сајта прихватате нашу употребу колачића. Политика приватности
Одбити Прихвати